

Basierend auf Google Bewertungen
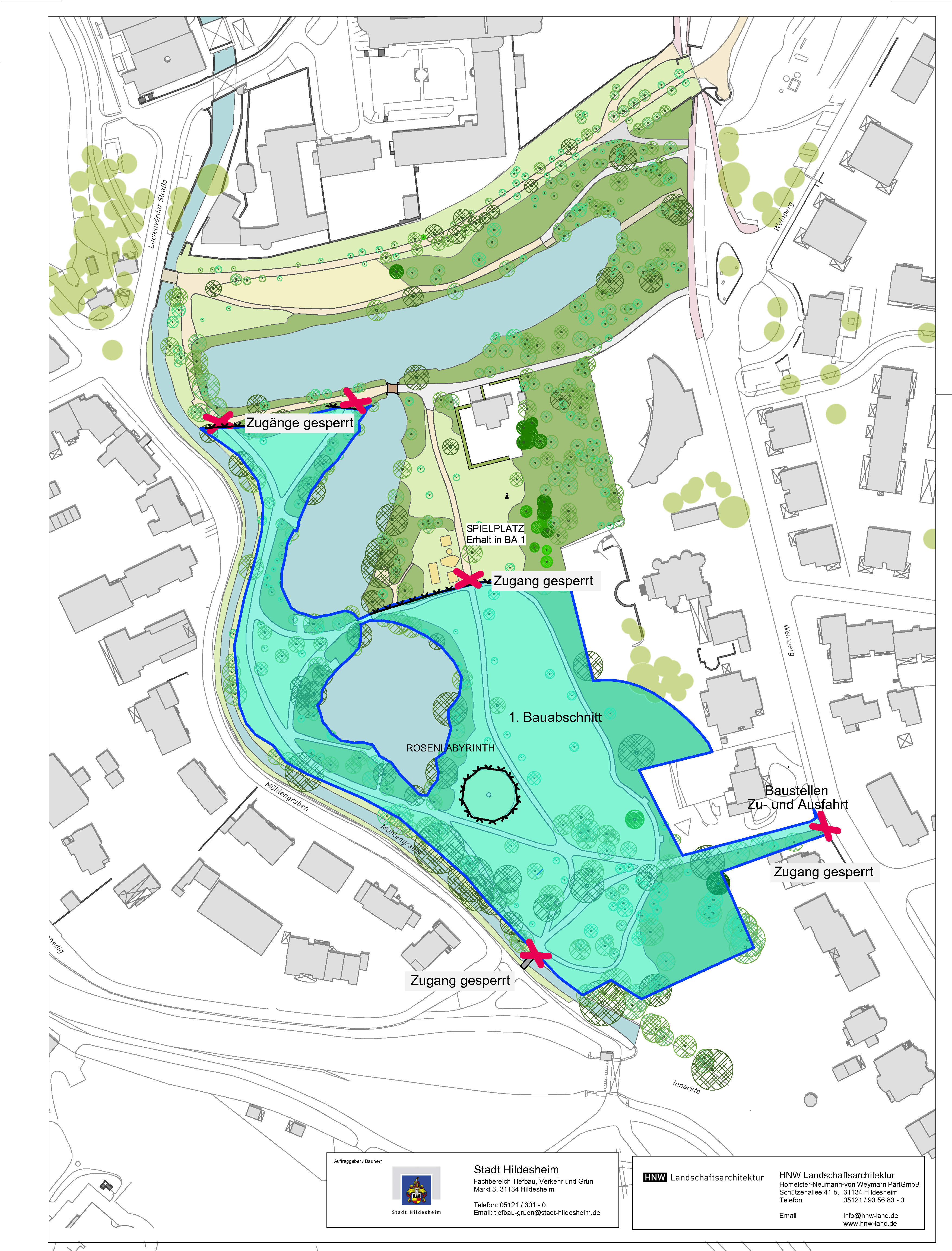
Der Ernst-Ehrlicher-Park in Hildesheim ist ein neu gestalteter, kinderfreundlicher Ort, der Familien und Naturfreunde gleichermaßen anspricht. Mit einem modernen Spielplatz, der Rutschen und viel Platz zum Spielen bietet, ist er ideal für Kinder. Der Park verfügt über schöne Wiesen, mehrere kleine Teiche mit Seerosen und breite, gut begehbare Wege, die auch für Kinderwagen geeignet sind. Die Nähe zur Altstadt macht ihn zu einem perfekten Ziel für einen Familienausflug. Obwohl der Park noch nicht ganz fertiggestellt ist, bietet er bereits viele Annehmlichkeiten und lädt zum Verweilen ein.
Basierend auf Google Bewertungen
Ernst-Ehrlicher-Park ist eine hervorragende Wahl für Familien, die ein kinderfreundliches Restaurant in Hildesheim suchen. Die Location bietet eine entspannte, familienfreundliche Atmosphäre, die sich perfekt für einen Besuch mit Kindern eignet.
Wenn Sie nach einem Ort suchen, wo Sie als Familie willkommen sind und sich die Kinder wohlfühlen, ist Ernst-Ehrlicher-Park eine ausgezeichnete Option. Mit einer Bewertung von 4.4/5 Sternen gehört dieses Restaurant zu den beliebtesten familienfreundlichen Locations in Hildesheim.
Nutzen Sie die Bambini Maps App, um noch mehr kinderfreundliche Cafés und Restaurants in Hildesheim und anderen Städten zu entdecken.